-140 kg/an

Projet Racine

Surface

22 m²

Bien

Appartement

Rénovation

28 600€

Évitement

140 kg de CO2/an

Un projet locatif !

Découvrez le projet Racine !

Ce charmant T1 de 22m2 est situé au cœur du 6ème arrondissement de Paris. Il a fait l’objet d’une rénovation complète, avec une dominante énergétique.

Les premières étapes ont consisté en la dépose complète des éléments existants : kitchenette, salle de bain, WC, chauffe-eau, radiateurs, cloisons, carrelage et faux plafonds. Les réseaux électriques et de plomberie ont été entièrement curés pour repartir sur des bases saines. Enfin, un ragréage fibré a été appliqué afin de garantir une surface parfaitement plane, prête à recevoir les nouvelles installations. Dans la salle de bain, une étanchéité complète a été mise en place au sol et sur les murs, suivie de la pose de carrelage et de l’installation d’une porte coulissante, d’un receveur de douche carrelé, d’un meuble vasque, d’un miroir et de faïence.

Les sols de l’entrée et du bureau ont été habillés d’un parquet collé. Les menuiseries ont été entièrement renouvelées avec la pose d’une porte d’entrée sur-mesure. Enfin, une cuisine signée Little Worker a été installée.

Le projet Racine illustre parfaitement comment même un petit appartement peut devenir un espace fonctionnel et confortable

Comment réussir son investissement immobilier à Paris ?

#Équipe

L’équipe sur le projet

placeholder

Cheffe de Projet

Sandra.P

placeholder

Responsable matériaux

Arthur.S

placeholder

Architecte d’intérieur

Alexandra.V

placeholder

Ingénieur travaux

Charles.H

Projet Racine ◌ Projet Racine ◌

#Architecture et Design

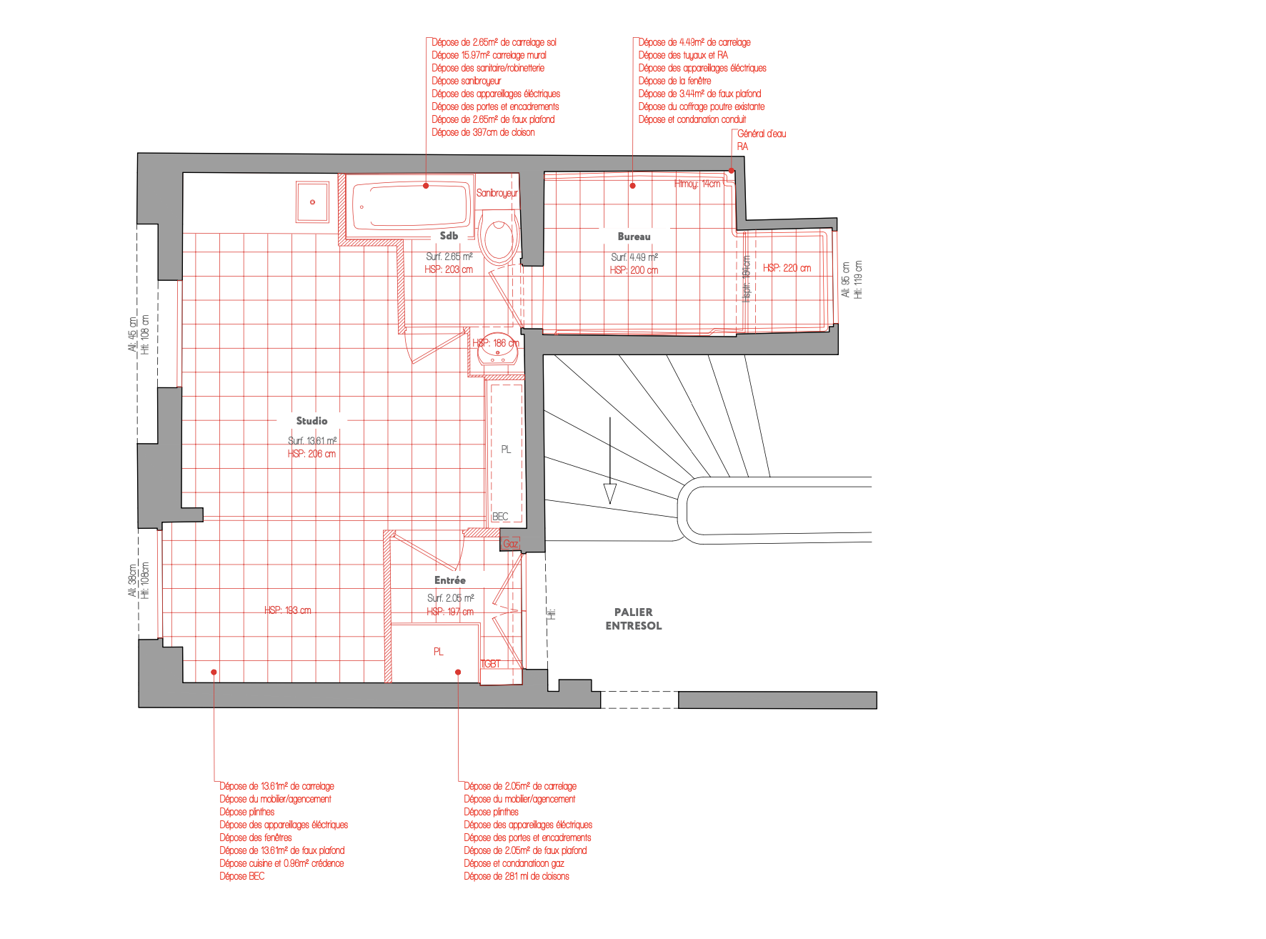
Le projet Racine en plans

L’ancien bureau et la salle d’eau ont été entièrement déposés pour donner naissance à une nouvelle salle de bains plus spacieuse.

L’ancien studio a été vidé dans son intégralité afin de créer le nouvel espace principal de vie, regroupant séjour, cuisine et coin nuit.

L’entrée a également été déposée et repensée pour être intégrée à la nouvelle configuration du logement.

Alexandra.V

Architecte d’intérieur

La presse Projet Racine

« Un studio rénové de 22m2 au cœur de Paris, un avant/après impressionnant ! »

 

Un petit espace pour une maxi transformation, c’est ce que nous offre la rénovation de ce studio au cœur de Paris. Les clients étaient décidés à créer un bien à l’élégance parisienne destiné à  la location de courte durée. Ici tout a été repensé. Situé dans un immeuble ancien, l’appartement était un concentré d’histoire. Mais il avait perdu son âme : tour à tour local de stockage, bureau ou pièce technique, il ne ressemblait plus à un lieu de vie. Un terrain parfait pour une rénovation complète et une reconversion astucieuse en studio de charme.

 

Planète Déco – Octobre 2025

#RénovationÉnergétique

Un projet beau, fructueux et durable

L’objectif principal du projet était l’accompagnement spécifique sur l’éco-rénovation et un DPE projeté en amont des travaux. Cette approche permet d’évaluer précisément les économies d’énergie, l’étiquette DPE, le retour sur investissement et la réduction des émissions de CO₂ avant et après les travaux. L’appartement est passé d’une étiquette G à une étiquette C au DPE.

 

Cela a été possible grâce aux travaux réalisés : la pose de radiateurs électriques et d’un extracteur d’air hygroréglable, ainsi que la pose de nouvelles fenêtres.

En savoir plus sur notre impact

140 kg

de CO2 économisés chaque année

20

allers-retours Paris – Berlin en TGV !

En savoir plus sur notre impact